アパート 和歌山県和歌山市 賃貸4の3 土地122.47平米 3DK×4戸 満室時利回り14.69%

  • (外観)
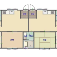
  • (間取)
  • (内装)
  • (内装)
  • (内装)
  • (内装)
  • (風呂)
  • トイレ(内装)

    トイレ

  • (地図)
価格
1070万円
満室時想定利回り
14.69%
間取
3DK

所在地 和歌山県和歌山市新在家
和歌山市新在家アパート
交通 JR阪和線紀伊中ノ島駅 徒歩10分
JR紀勢本線和歌山駅 徒歩21分
JR和歌山線和歌山駅 徒歩21分

賃貸状況
4部屋中 3部屋賃貸中
4部屋中 1部屋空室

・オーナーチェンジ
・法22条区域、景観法
・各階の面積:1F 85.68㎡ / 2F 79.20㎡
・住戸の専有面積:41.00㎡~41.00㎡
・設備:電気、上水道、汲み取り、プロパンガス
・学区:四箇郷小学校(徒歩約11分)、紀之川中学校(徒歩約14分)
・周辺環境:コープ中之島店 徒歩約7分、ファミリーマート和歌山中之島水道路店 徒歩約6分、
ウエルシア和歌山有本店 徒歩約7分、宮北保育所 徒歩約11分、和歌山生協病院 徒歩約7分
・スーパー・コンビニ・ドラッグストア等近く、生活便利な立地です!

賃貸状況
建物構造 木造 階数 地上2階  築年月 1971/02
建物面積 164.88m² 間取り 3DK 総戸数 4戸
駐車場  無 土地面積 122.47m² 土地権利 所有権
私道負担面積 地目 宅地 都市計画区域 市街化区域
用途地域 準工業 建ぺい率 60% 容積率 200%
国土法届出 不要 推進状況 現況引き渡し 賃貸中
引き渡し 相談 建築確認番号 取引形態 仲介
注意事項


関連物件

  • 和歌山県和歌山市 賃貸6の4 木造 満室時利回り29.71%和歌山県和歌山市 賃貸6の4 木造 満室時利回り29.71%
    850万円
    和歌山市 有本14-10

    JR阪和線紀伊中ノ島駅
  • 和歌山県和歌山市 賃貸8の7 土地258.00平米 2DK×8戸 満室時利回り22.49% 売電収入有和歌山県和歌山市 賃貸8の7 土地258.00平米 2DK×8戸 満室時利回り22.49% 売電収入有
    1400万円 2DK
    和歌山市 岩橋

    JR和歌山線田井ノ瀬駅
  • 和歌山県和歌山市 満室稼働中 土地360.47平米 2LDK×4戸 満室時利回り9.10% 売電収入有和歌山県和歌山市 満室稼働中 土地360.47平米 2LDK×4戸 満室時利回り9.10% 売電収入有
    4800万円 2LDK
    和歌山市 岩橋

    JR和歌山線田井ノ瀬駅
  • 和歌山県和歌山市 満室稼働中 土地687.05平米 2棟一括 2DK×20戸 満室時利回り14.03%和歌山県和歌山市 満室稼働中 土地687.05平米 2棟一括 2DK×20戸 満室時利回り14.03%
    5980万円 2DK
    和歌山市 中之島

    JR紀勢本線紀和駅
  • 和歌山県和歌山市 賃貸16の7 土地1283.78平米 1K×16戸 満室時利回り17.55%和歌山県和歌山市 賃貸16の7 土地1283.78平米 1K×16戸 満室時利回り17.55%
    3600万円 1K
    和歌山市 磯の浦字壱ノ坪

    南海加太線二里ヶ浜駅
※物件掲載内容と現況に相違がある場合は現況を優先と致します。