アパート 仙台市太白区 満室稼働中 土地511.86 1K×8戸 満室時利回り6.94%

  • (外観)
価格
7800万円
満室時想定利回り
6.94%
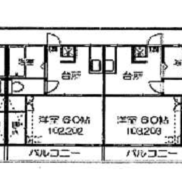
間取
1K

所在地 宮城県仙台市太白区緑ヶ丘1丁目13-1
オーシャンビュール長町南
交通 仙台市営南北線長町南駅 徒歩19分

賃貸状況

8部屋 満室稼働中

賃貸状況
建物構造 木造 階数 地上2階  築年月 2023/10
建物面積 212.19m² 間取り 1K 総戸数 8
駐車場  8台あり 土地面積 511.86m² 土地権利 所有権
私道負担面積 地目 都市計画区域 市街化区域
用途地域 第一種低層住居専 建ぺい率 50% 容積率 80%
国土法届出 推進状況 現況引き渡し 賃貸中
引き渡し 相談 建築確認番号 取引形態 仲介
注意事項


関連物件

  • 仙台市太白区 賃貸12の8 木造 1K×12戸 満室時利回り10.25%仙台市太白区 賃貸12の8 木造 1K×12戸 満室時利回り10.25%
    2880万円 1K
    仙台市太白区 桜木町39-26

    仙台市営東西線八木山動物公園駅
  • 宮城県仙台市 満室稼働中 土地155.55平米 2DK×4戸 満室時利回り12.94%宮城県仙台市 満室稼働中 土地155.55平米 2DK×4戸 満室時利回り12.94%
    1400万円 2DK
    仙台市太白区 ⻄の平1丁目

    仙台市営東西線八木山動物公園駅
  • 宮城県仙台市 賃貸24の8 土地1111.14平米 3棟一括 1K×24戸 満室時利回り14.73%宮城県仙台市 賃貸24の8 土地1111.14平米 3棟一括 1K×24戸 満室時利回り14.73%
    4900万円 1K
    仙台市太白区 八木山弥生町

    仙台市営南北線長町南駅
※物件掲載内容と現況に相違がある場合は現況を優先と致します。