賃貸状況
12部屋満室賃貸中
・第一種高度地区
・契約不適合免責
・司法書士売主指定
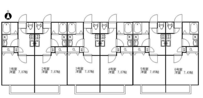
・各階の面積:1階 149.34㎡ /2階 149.34㎡
・住戸の専有面積:24.82㎡~25.02㎡
・設備:公営水道、プロパンガス、公共下水、駐輪場有、エレベーター無、オートロック無
|
14900万円 |
6.03% |
1K |
|
|
||
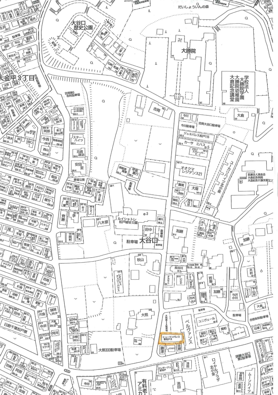
| 所在地 | 千葉県松戸市大谷口 ヒューマンパレス新松戸X |
|---|---|
| 交通 | JR常磐線北小金駅 徒歩10分 JR武蔵野線新松戸駅 徒歩13分 JR常磐線新松戸駅 徒歩13分 |
賃貸状況
12部屋満室賃貸中
・第一種高度地区
・契約不適合免責
・司法書士売主指定
・各階の面積:1階 149.34㎡ /2階 149.34㎡
・住戸の専有面積:24.82㎡~25.02㎡
・設備:公営水道、プロパンガス、公共下水、駐輪場有、エレベーター無、オートロック無
| 賃貸状況 | |||||
| 建物構造 | 木造 | 階数 | 地上2階 | 築年月 | 2019/08 |
| 建物面積 | 298.68 m² | 間取り | 1K | 総戸数 | 12戸 |
| 駐車場 | 無 | 土地面積 | 277.21m² | 土地権利 | 所有権 |
| 私道負担面積 | 地目 | 宅地 | 都市計画区域 | 市街化区域 | |
| 用途地域 | 第一種中高層住居専用 | 建ぺい率 | 60% | 容積率 | 200% |
| 国土法届出 | 推進状況 | 現況引き渡し | 賃貸中 | ||
| 引き渡し | 相談 | 建築確認番号 | 取引形態 | 仲介 | |
| 注意事項 | |||||