賃貸状況
6部屋満室賃貸中
・45m高度地区、準防火地域、景観計画区域、緑化地域、大規模集客施設制限地区
・現況有姿、公簿売買、境界石明示、瑕疵担保責任は免責となります。
・令和7年度 固都定資産税:建物 164,743円、土地 70,605円
・住戸の専有面積:58.70m²~58.70m²
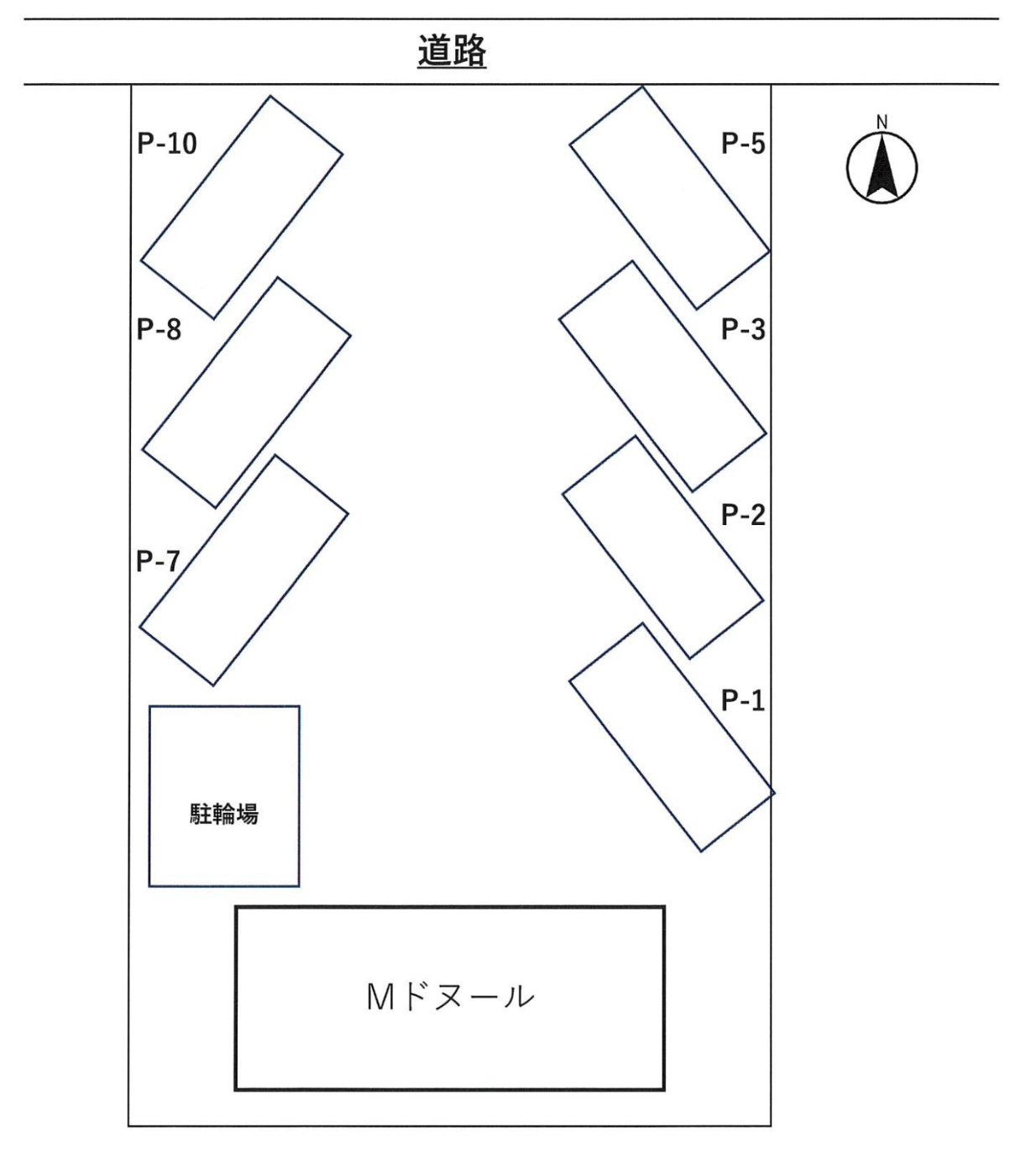
・設備:中電、公営水道、本下水、プロパン、駐輪場あり
|
5300万円 |
8.76% |
3LDK |
|
|
||
| 所在地 | 愛知県名古屋市中川区吉津1丁目 Mドヌール |
|---|---|
| 交通 | JR関西本線春田駅 徒歩27分 近鉄名古屋線伏屋駅 徒歩30分 名古屋市営東山線岩塚駅 徒歩42分 |
賃貸状況
6部屋満室賃貸中
・45m高度地区、準防火地域、景観計画区域、緑化地域、大規模集客施設制限地区
・現況有姿、公簿売買、境界石明示、瑕疵担保責任は免責となります。
・令和7年度 固都定資産税:建物 164,743円、土地 70,605円
・住戸の専有面積:58.70m²~58.70m²
・設備:中電、公営水道、本下水、プロパン、駐輪場あり
| 賃貸状況 | |||||
| 建物構造 | 鉄骨造 | 階数 | 地上3階 | 築年月 | 1988/10 |
| 建物面積 | 352.35m² | 間取り | 3LDK | 総戸数 | 6戸 |
| 駐車場 | 7台/7台 | 土地面積 | 417.50m² | 土地権利 | 所有権 |
| 私道負担面積 | 地目 | 宅地 | 都市計画区域 | 市街化区域 | |
| 用途地域 | 準工業 | 建ぺい率 | 60% | 容積率 | 300% |
| 国土法届出 | 推進状況 | 現況引き渡し | 賃貸中 | ||
| 引き渡し | 相談 | 建築確認番号 | 取引形態 | 仲介 | |
| 注意事項 | |||||