賃貸状況
27部屋中 17部屋賃貸中
27部屋中 10部屋空室
・準防火地域
・31m高度地区
・現況有姿
・公簿売買
・境界非明示
・売主の契約不適合責任は免責とします。
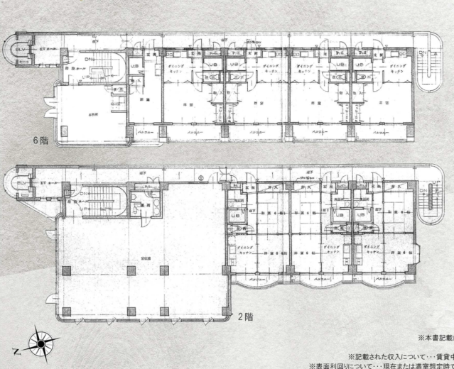
・種類:共同住宅・店舗・事務所・機械室
・各階の面積:1階 199.30㎡ / 2階 321.20㎡ / 3~4階 299.48㎡ / 5階 263.79㎡ / 6階 226.05㎡
・住戸の専有面積:22.00㎡〜75.56㎡
・設備:公営水道、公共下水、都市ガス、エレベーター1台
・ライフインフォメーション:オークワ西大和店 徒歩2分(約140m)、コーナン西大和店 徒歩2分(約140m)、
河合町立河合第二小学校 徒歩4分(約270m)、河合町立河合第二中学校 徒歩6分(約450m)、セブンイレブン近鉄大輪田駅前店 徒歩2分(約170m)
・西大和ニュータウン生活圏に位置する、テナント・オフィス・住居複合型マンション






