マンション 広島県広島市 賃貸5の2 RC造 店舗・事務所×3戸 満室時利回り17.19%

  • (外観)
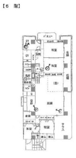
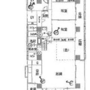
  • (間取)
  • (間取)
  • (間取)
  • (間取)
  • (間取)
価格
14000万円
満室時想定利回り
17.19%

所在地 広島県広島市南区向洋本町2番13号
サンロードビル
交通 JR山陽本線向洋駅 徒歩10分

賃貸状況

5部屋中 2部屋賃貸中
5部屋中 3部屋空室

※居住誘導区域指定、一部が土砂災害警戒区域になります。

※駐車場は約16台+α(2台程度)駐車ができます。

※満室想定年収には、アンテナ収入が含まれております。

賃貸状況
建物構造 RC 階数 地上6階  築年月 1990/01
建物面積 1887.16m² 間取り 総戸数 5
駐車場  約16台+α(2台程度)駐車ができます。 土地面積 564.41m² 土地権利 所有権
私道負担面積 地目 都市計画区域 市街化区域
用途地域 工業 建ぺい率 60% 容積率 200%
国土法届出 推進状況 現況引き渡し 賃貸中
引き渡し 即時 建築確認番号 取引形態 仲介
注意事項


関連物件

  • new
    広島県広島市 賃貸80の70 土地683.00平米 1K×80戸 告知事項有 満室時利回り7.18%広島県広島市 賃貸80の70 土地683.00平米 1K×80戸 告知事項有 満室時利回り7.18%
    37500万円 1K
    広島市南区 東雲二丁目

    JR山陽本線向洋駅
  • 広島県広島市 賃貸16の10 土地381.28平米 満室時利回り15.14%広島県広島市 賃貸16の10 土地381.28平米 満室時利回り15.14%
    5000万円
    広島市南区 向洋本町19-31

    JR山陽本線向洋駅
※物件掲載内容と現況に相違がある場合は現況を優先と致します。