賃貸状況
18部屋 サブリース中
※プロパンガスになります。
|
16100万円 |
7.49% |
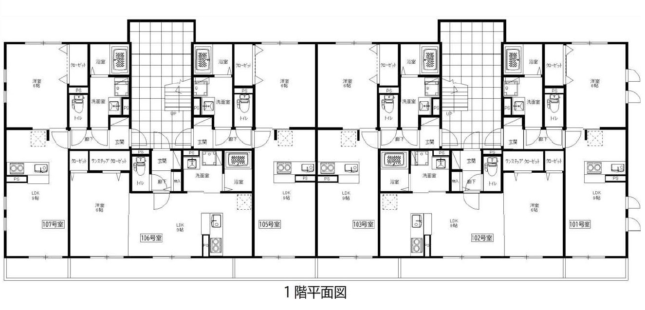
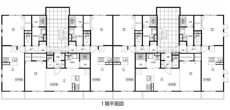
1LDK |
|
|
||
| 所在地 | 福島県双葉郡広野町大字下浅見川字本町28 カエツリアルフィールド広野D-room |
|---|---|
| 交通 | JR常磐線広野駅 徒歩7分 |
賃貸状況
18部屋 サブリース中
※プロパンガスになります。
| 賃貸状況 | |||||
| 建物構造 | 鉄骨造 | 階数 | 地上3階 | 築年月 | 2018/10 |
| 建物面積 | 678.96m² | 間取り | 1LDK | 総戸数 | 18 |
| 駐車場 | 土地面積 | 1,010.23m² | 土地権利 | 所有権 | |
| 私道負担面積 | 地目 | 都市計画区域 | |||
| 用途地域 | 無指定 | 建ぺい率 | 60% | 容積率 | 200% |
| 国土法届出 | 推進状況 | 現況引き渡し | 賃貸中 | ||
| 引き渡し | 相談 | 建築確認番号 | 取引形態 | 仲介 | |
| 注意事項 | |||||