アパート
広島県廿日市市 満室稼働中 土地148.98平米 メゾネット1LDK×4戸 満室時利回り16.03% 再建築不可
- 価格
1280万円
|
- 満室時想定利回り
16.03%
|
- 間取
1LDK
|
|
| 所在地 |
広島県廿日市市住吉1丁目 廿日市市住吉1丁目アパート |
| 交通 |
広島電鉄宮島線広電廿日市駅 徒歩12分 JR山陽本線廿日市駅 徒歩17分 広島電鉄宮島線廿日市市役所前平良駅 徒歩15分 |
賃貸状況
4部屋満室賃貸中
・再建築不可
・オーナーチェンジ
・プロパン業者指定有
・令和7年度固都税:56,100円
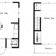
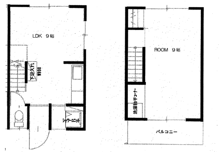
・令和7年1月末リフォーム完了(全面改装):間取変更、キッチン、トイレ、シャワーユニット、洗濯パン、給湯器交換、
床張替、クロス張替、玄関扉交換、インターフォンテレビ付変更、玄関ポーチ張替、外壁補修・塗装、ベランダ屋根交換
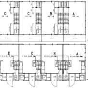
・1F:LDK9.5 、2F: 洋9
・住戸の専有面積:37.43m²~37.43m²
・主要採光面:南向き
・地勢:平坦
・設備:B・T別、シャワー、トイレ、収納スペース、室内洗濯機置場、給湯、プロパンガス、冷房、防犯カメラ、宅配BOX
| 賃貸状況 |
|
| 建物構造 |
木造 |
階数 |
地上2階 |
築年月 |
1970/12 |
| 建物面積 |
156.86m² |
間取り |
1LDK |
総戸数 |
4戸 |
| 駐車場 |
|
土地面積 |
148.98m² |
土地権利 |
所有権 |
| 私道負担面積 |
|
地目 |
|
都市計画区域 |
市街化区域 |
| 用途地域 |
第一種住居 |
建ぺい率 |
60% |
容積率 |
200% |
| 国土法届出 |
|
推進状況 |
|
現況引き渡し |
賃貸中 |
| 引き渡し |
即時 |
建築確認番号 |
|
取引形態 |
仲介 |
| 注意事項 |
|
※物件掲載内容と現況に相違がある場合は現況を優先と致します。