アパート 和歌山県和歌山市 満室稼働中 土地360.47平米 2LDK×4戸 満室時利回り9.10% 売電収入有

  • (外観)
  • (外観)
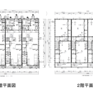
  • (間取)
  • (地図)
価格
4800万円
満室時想定利回り
9.10%
間取
2LDK

所在地 和歌山県和歌山市岩橋
ファミーユ松里
交通 JR和歌山線田井ノ瀬駅 徒歩5分
JR和歌山線千旦駅 徒歩24分
JR和歌山線布施屋駅 徒歩46分

賃貸状況
4部屋満室稼働中

・オーナーチェンジ
・太陽光発電 売電収入:63,791円/月(1ヵ月平均)
・主要採光面:南向き
・地勢:平坦
・セットバック:無
・前面道路は法定外道路ですが、西側約4.5m道路・南側約4m道路なので住宅街としては不便の無い道路幅です。
・各階の面積:1階 127.74㎡ /2階 123.44㎡
・住戸の専有面積:62.80㎡~62.80㎡
・設備:B・T別、追焚機能、トイレ、収納スペース、プロパンガス、複層ガラス、太陽光発電システム、エアコン
・土地の形も南西角地で比較的整形地であり、土地の価値は高い。

賃貸状況
建物構造 木造 階数 地上2階  築年月 2014/05
建物面積 251.18m² 間取り 2LDK 総戸数 4戸
駐車場  8台(縦列含む) 無料 土地面積 360.47m² 土地権利 所有権
私道負担面積 44.24㎡ 地目 都市計画区域 市街化調整区域
用途地域 無指定 建ぺい率 60% 容積率 200%
国土法届出 推進状況 現況引き渡し 賃貸中
引き渡し 相談 建築確認番号 取引形態 仲介
注意事項


関連物件

  • 和歌山県和歌山市 賃貸8の7 土地258.00平米 2DK×8戸 満室時利回り22.49% 売電収入有和歌山県和歌山市 賃貸8の7 土地258.00平米 2DK×8戸 満室時利回り22.49% 売電収入有
    1400万円 2DK
    和歌山市 岩橋

    JR和歌山線田井ノ瀬駅
  • 和歌山県和歌山市 満室稼働中 土地687.05平米 2棟一括 2DK×20戸 満室時利回り14.03%和歌山県和歌山市 満室稼働中 土地687.05平米 2棟一括 2DK×20戸 満室時利回り14.03%
    5980万円 2DK
    和歌山市 中之島

    JR紀勢本線紀和駅
  • 和歌山県和歌山市 賃貸16の7 土地1283.78平米 1K×16戸 満室時利回り17.55%和歌山県和歌山市 賃貸16の7 土地1283.78平米 1K×16戸 満室時利回り17.55%
    3600万円 1K
    和歌山市 磯の浦字壱ノ坪

    南海加太線二里ヶ浜駅
  • 和歌山県和歌山市 賃貸11の3 土地982.73平米 長屋 3K 土地積算>売価 満室時利回り14.72% 和歌山県和歌山市 賃貸11の3 土地982.73平米 長屋 3K 土地積算>売価 満室時利回り14.72%
    1980万円 3K
    和歌山市 松島

    JR阪和線紀伊中ノ島駅
  • 和歌山県和歌山市 賃貸4の3 土地122.47平米 3DK×4戸 満室時利回り14.69%和歌山県和歌山市 賃貸4の3 土地122.47平米 3DK×4戸 満室時利回り14.69%
    1070万円 3DK
    和歌山市 新在家

    JR阪和線紀伊中ノ島駅
※物件掲載内容と現況に相違がある場合は現況を優先と致します。