マンション 石川県金沢市 満室稼働中 鉄骨造 1R×24戸 1LDK×1戸 満室時利回り10.42%

  • (外観)
  • (外観)
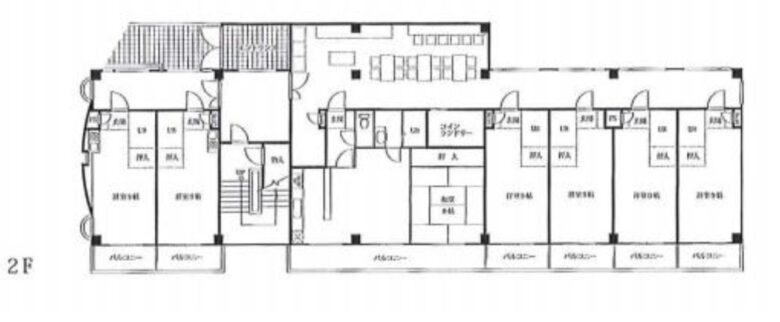
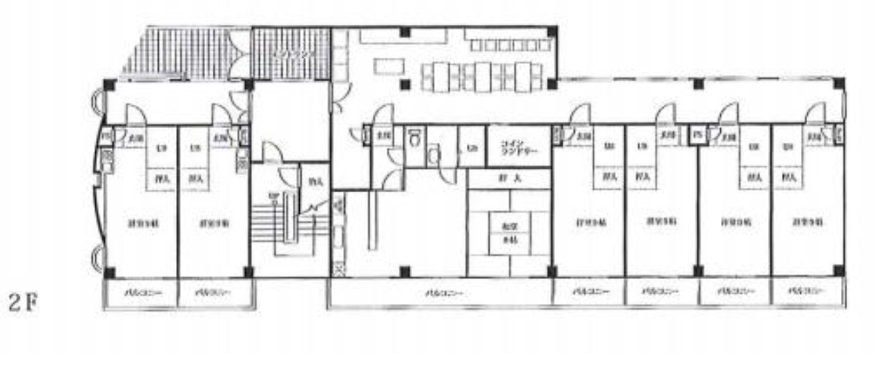
  • (間取)
  • (間取)
価格
9980万円
満室時想定利回り
10.42%

所在地 石川県金沢市辰巳町口69-1
ハーフトーン25
交通 JR北陸新幹線金沢駅
バス(東部車庫駅停留所 乗40分 停歩5分)

賃貸状況

25部屋 満室稼働中

※エレベーターはありません。

※プロパンガスになります。

賃貸状況
建物構造 鉄骨造 階数 地上3階  築年月 1991/06
建物面積 798.17m² 間取り 総戸数 25
駐車場  22台あり 土地面積 630.6m² 土地権利 所有権
私道負担面積 地目 都市計画区域 市街化区域
用途地域 第一種中高層住居専用 建ぺい率 60% 容積率 200%
国土法届出 推進状況 現況引き渡し 賃貸中
引き渡し 相談 建築確認番号 取引形態 仲介
注意事項


関連物件

  • 石川県金沢市 賃貸17の10 土地551.05平米 満室時利回り8.75%石川県金沢市 賃貸17の10 土地551.05平米 満室時利回り8.75%
    13760万円
    金沢市 若松町南34

    JR北陸新幹線金沢駅
  • 石川県金沢市 賃貸15の11 土地739.53平米 満室時利回り9.27%石川県金沢市 賃貸15の11 土地739.53平米 満室時利回り9.27%
    12140万円
    金沢市 若松町南3

    JR北陸新幹線金沢駅
  • 石川県金沢市 賃貸6の4 土地96.39平米 1K×2戸、2K×4戸 満室時利回り14.81%石川県金沢市 賃貸6の4 土地96.39平米 1K×2戸、2K×4戸 満室時利回り14.81%
    1640万円 1K
    金沢市 野町2丁目

    北陸鉄道石川線野町駅
  • 石川県金沢市 賃貸20の17 土地715.52平米 3DK、2DK 満室時利回り 13.45%石川県金沢市 賃貸20の17 土地715.52平米 3DK、2DK 満室時利回り 13.45%
    7500万円 3DK
    金沢市 泉本町6丁目

    北陸鉄道石川線西泉駅
※物件掲載内容と現況に相違がある場合は現況を優先と致します。